Tom

The Dykes House

The Dykes House (Barndominium with Prefabricated Steel Building Design)

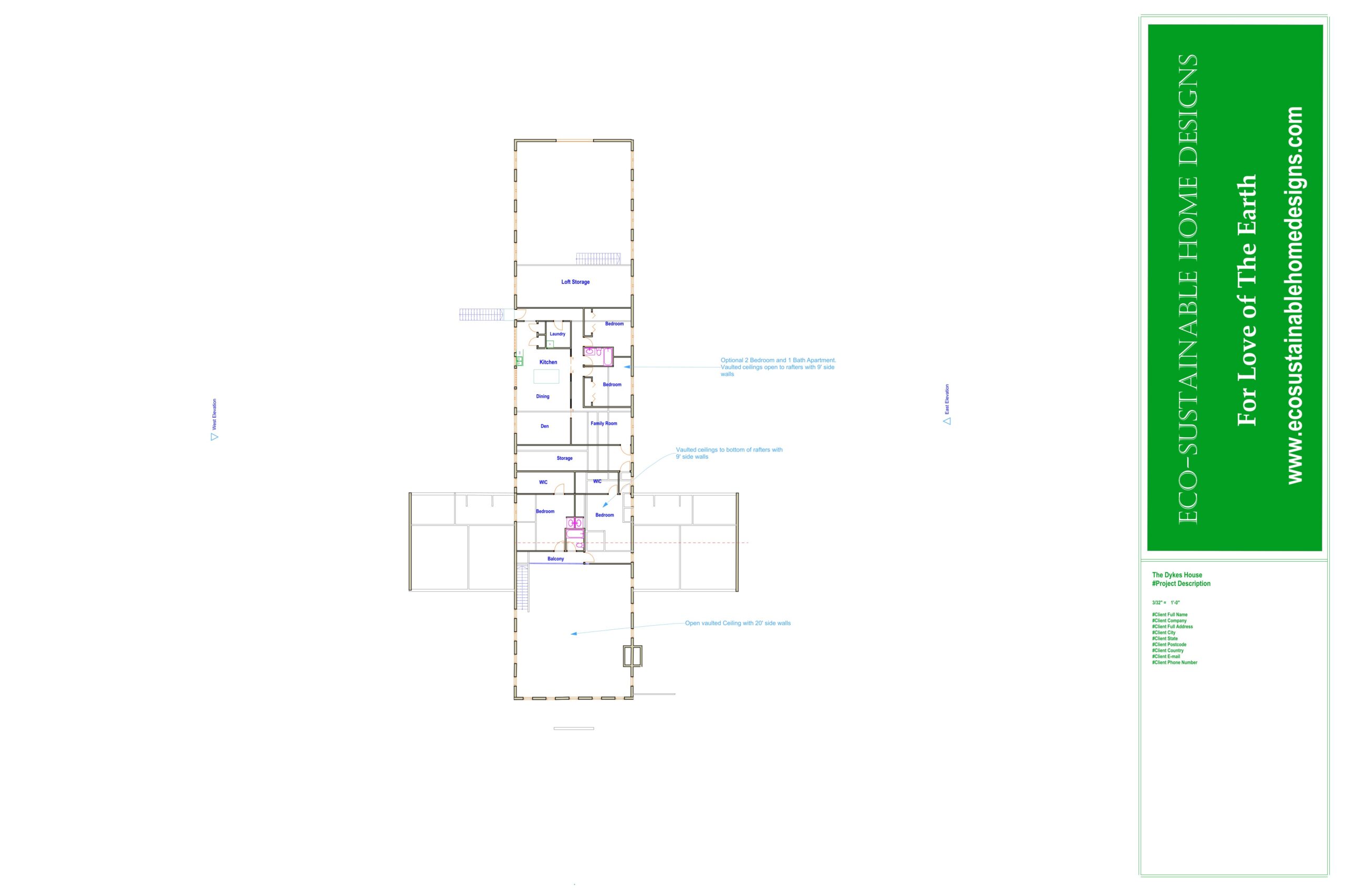
5 Bedrooms and 4 ½ Baths with 2 primary bedroom suites on ground floor with large quest bedroom with full bath on main floor.

The total conditioned space on ground floor: 3507 SF

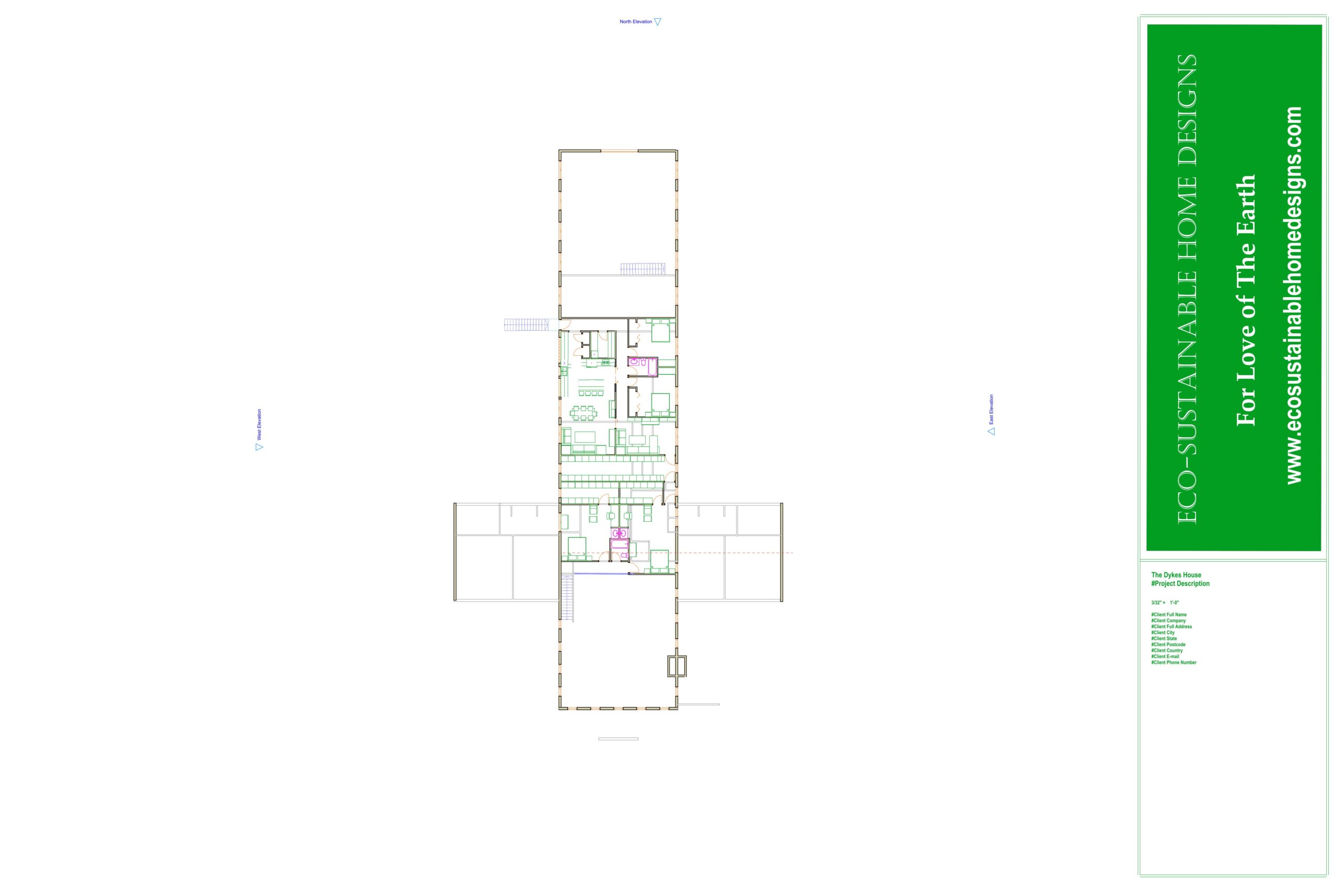
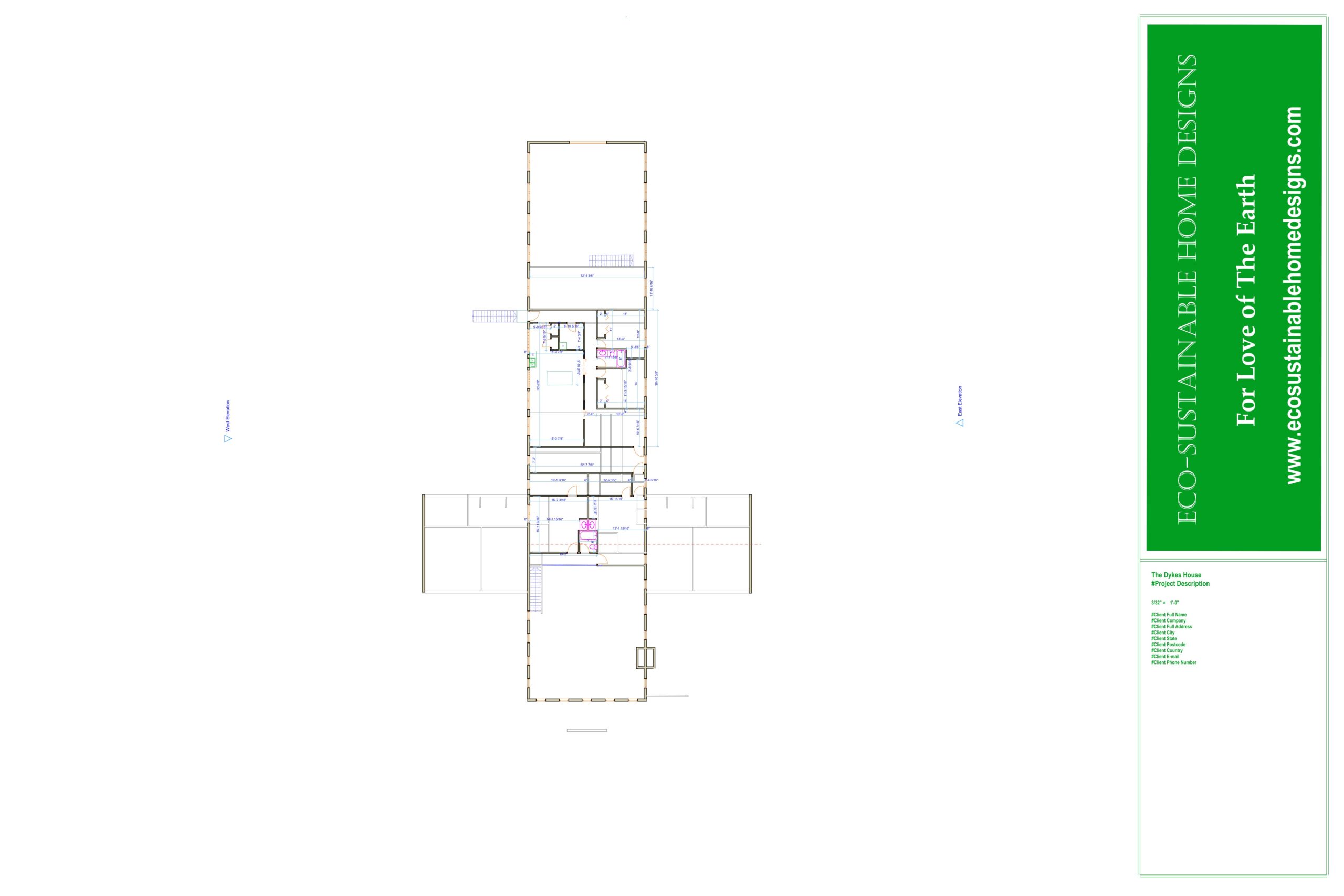
On 2nd story are two Bedrooms and a Bath each with large walk-in closets: 847 SF

The Total Conditioned space in the main house: 4354 SF

In addition, on 2nd story there is a bonus space for storage: 234 SF

On the ground floor there is a large mud room/pantry and additional storage space behind the 4-car garage of 339 SF for a total of 573 SF in the main house.

3 car garage with large bay for a boat: 1183 SF

Workshop: 1666 SF with loft storage 397 SF making a total of 2063SF

With bonus space over Garage there is an optional 2 bedroom and 1 bath apartment with private entrance:1270 SF

Attached to workshop is a open gable shed: 380 SF

2 covered porches off Primary Bedroom Suites and kitchen and primary living space: 1047 SF

Covered front entrance: 80 SF

The Total Footprint: 168’ x 94’

Construction Plans: $3222.00

The Dykes House West Side View

The Dykes House Rear View

The Dykes House Front View

Construction Plans

The Dykes House 2nd Story Furnished

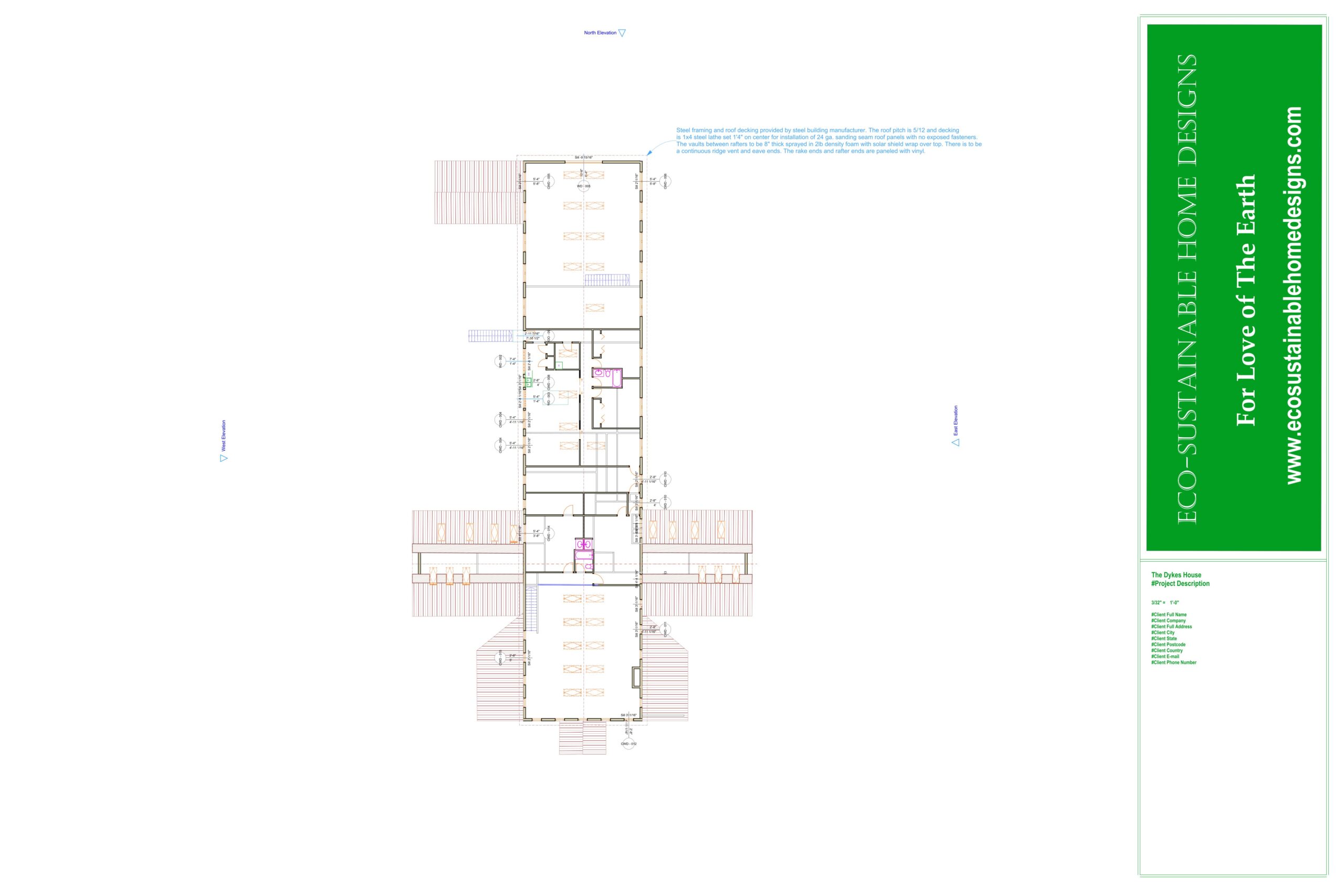
The Dykes House 2nd Story Roof Plan and Insulation Notes

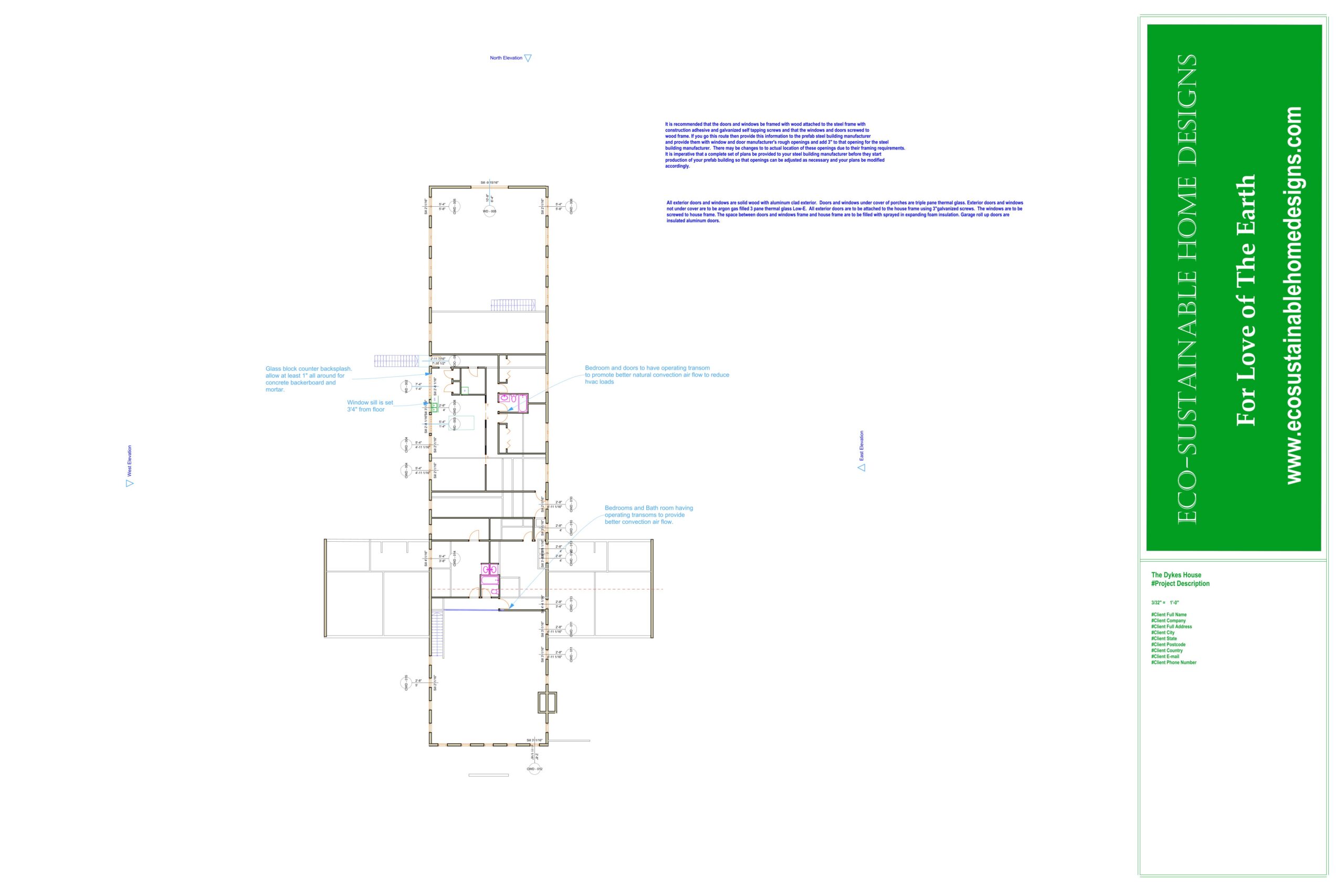
The Dykes House 2nd Story Window and Door Markers and Notes

The Dykes House 2nd Story with Dimensions

The Dykes House 2nd Story with Room Labels and Ceiling heights

The Dykes House Foundation, HVAC and Site Notes

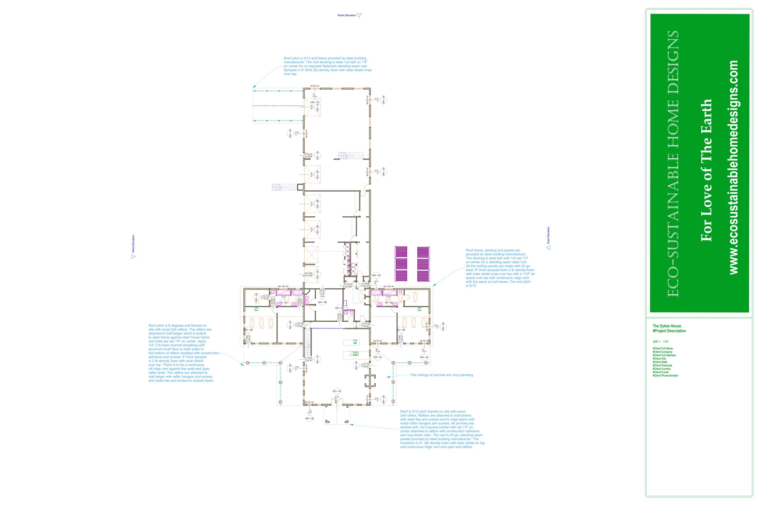
The Dykes House Ground Floor Roofing and Insulation Notes

The Dykes House Ground Floor with Dimensions

The Dykes House Ground Floor with Window and Door Markers and General Notes

The Dykes House Main Floor Skylight Notes

The Dykes House North Elevation

The Dykes House West Elevation

The Dykes House with Framing and Trusses Notes

Scroll to Top